Termometry bimetaliczne

Termometry bimetaliczne TB-063/TB-100
Kod produktu: Termometry TB
Termometry bimetaliczne przeznaczone są do stosowania głównie w systemach grzewczych i wodociągowych. Termometry wykonane są w obudowie aluminiowej. Zakres mierzenia temperatury od -30°C do 600°C. Pomiar temperatury odbywa się za pomocą czujnika bimetalicznego. Termometry dostępne są w kilku wersjach.
Termometr standardowy bimetaliczny TB-063 i TB-100 – Właściwości
Termometr TB-063 i TB-100 przeznaczony do stosowania głównie w systemach grzewczych i wodociągowych jako prosty wskaźnik temperatury. Obudowa termometru bimetalicznego TB-063 i TB-100 jest wykonana z aluminium; pierścień ze stali nierdzewnej; czujnik i osłona - stop miedzi.
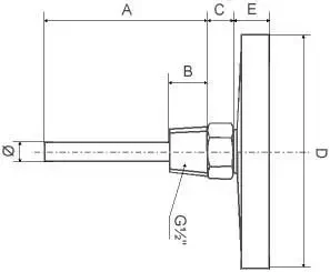
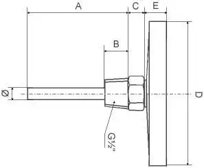
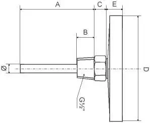
wymiary z osłoną | A | B | C | D | E | Ø |
| TB-63 | 40 | 9 | 9 | 63,5 | 12 | 11 |
| TB-100 | 40 | 9 | 9,5 | 99,8 | 15 | 11 |
Termometr TB-063 dostępny jest w wersjach:
- z czujnikiem axialnym 45 mm,gwintem G1/2,
- z czujnikiem radialnym 45 mm,gwintem G1/2,
- z opaską do montażu na rurach.
Termometr TB-100 dostępny w wersjach:
- z czujnikiem axialnym 45 mm, gwintem G1/2,
- z czujnikiem axialnym 60 mm, gwintem G1/2.
Termometr bimetaliczny posiada regulację zera na końcówce czujnika.
Zasada działania termometru bimetalicznego TB-063 i TB-100
Oprócz standardowych wskaźników temperatury wykorzystywanych w ciepłownictwie posiadamy również całą gamę termometrów w wykonaniu nierdzewnym do stosowania w wyższych zakresach temperatur lub do stosowania w przemyśle spożywczym.
Parametry
| Zakres pomiarowy temperatury | 0 ... 120 °C inny na zapytanie |
| Akcesoria | osłona do czujnika termometru |
| Długość czujnika | 45 mm inna na zapytanie |
| Przyłącze procesowe | tylne radialne opaska |
| Wielkość mierzona | temperatura |
| Dokładność | ±2,00 % |
| Materiał elementów zwilżanych | mosiądz |
| Materiał obudowy | aluminium stal nierdzewna |
| Aplikacja | przemysłowe kotły użytkowe i energetyczne kotłownie instalacje parowe przewody ciśnieniowe systemy grzewcze |
| Ciśnienie | 6 bar |
| Średnica obudowy | 100 mm 63 mm |
| Gwint | G1/2" |
| Producent | Introl |
Produkty powiązane
Kontakt z Ekspertem
Chcesz dowiedzieć się więcej na temat tego rozwiązania? Wyślij zapytanie do naszych Ekspertów.

































